Miete

Ladenbüro in Untergiesing – 3,38 m Deckenhöhe – ab sofort

Eckdaten

Kaltmiete
1.735 €
Zimmer
2
Wohnfläche
69

Objektbeschreibung

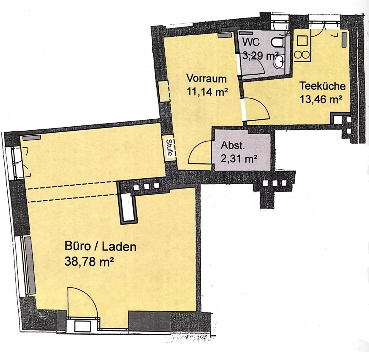
Sehr schön renoviert: Ladenbüro in einem Altbau mit Ecklage in Untergiesing. Damit gut sichtbar für Werbemöglichkeiten in den großen Fenstern. Die Einheit wird im Zweitbezug nach Komplettrenovierung 2021 angeboten, sie bietet 3,38 m Deckenhöhe und hat große Fenster nach zwei Seiten. Die Einheit besteht aus dem großen Ladenbüroraum ca. 39 m2, zusätzlich ein Konfibereich mit ca. 11 m2 und eine Küche mit ca. 13,5 m2. Ein Büro mit Charme. Eigener Eingang direkt zur Straße. Es können Werbeschilder über der Ladenfassade angebracht werden. Aufteilung: 1 Ladenbüro, 1 Konfibereich hinten, 1 Küche, 1 Abstellkammer, 1 WC. Bezug: ab sofort möglich. Es wird ein unbefristeter Mietvertrag mit 6-monatiger Kündigungsfrist angeboten. Mehrwertsteuerfrei. Die Nebenkosten und Heizkosten in Höhe von 210,- Euro sind eine Pauschale und werden nicht abgerechnet. Nur die Wasser und Abwasserkosten sind extra nach Verbrauch zu bezahlen. Staffelmiete mit 3 % Erhöhung jährlich. Mieterprovision: 2,38 Nettomonatsmieten inkl. Mehrwertsteuer Kein Keller.

Objektdaten

Ort
München
Wohnfläche
69
Anzahl Zimmer
2
Etage
EG
Ausstattung
gehoben
Kaltmiete
1.735 €
Warmmiete
1.945 €
Nebenkosten
210 €
Heizkosten
In Nebenkosten enthalten
Nur an Nichtraucher
Ja
Baujahr
1905

Ausstattung

Komplettrenovierung 2021: Neuer Kunststoffboden in Parkettoptik in allen Räumen. Neuer Feinsteinboden in der Teeküche. Neue erstelltes WC. Neue Elektrik Neue Türen Neue Fensterelemente Zwei große Schaufenster Fenster im hinteren Raum Kein Keller

Ausstattung

Denkmalschutz
Ja
Abstellraum
Ja
Gäste WC
Ja
Bodenbelag
Parkett

Energie & Verbrauch

Energieausweis
wird nicht benötigt
Heizungsart
Zentralheizung

Lage

Gut sichtbar gelegen in Untergiesing. Geschäfte des täglichen Bedarfs, Bäckereien etc., befinden sich in unmittelbarer Umgebung. Der U-Bahnhof „Candidplatz“ ist fast vor dem Haus. Die Isar ist nur paar Gehminuten entfernt gelegen. Der Mittlere Ring ist nicht weit, deshalb sehr gut mit dem Auto zu erreichen. Entspannte Parkplatzsituation mit Anwohnerausweis.

Sonstiges

Weitere interessante Angebote finden Sie unter www.select-property.de

Grundrisse

Kaltmiete: 1.735 €
Bild von Dirk Elsner
Dirk Elsner

Ihr Kontakt